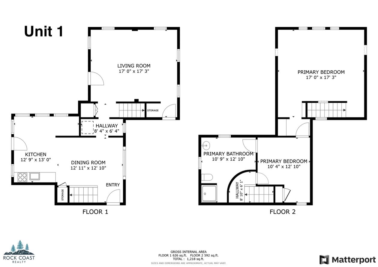
INVESTMENT OPPORTUNITY! This well-maintained 4-unit building and workshop are situated on a quiet in town street. Constructed in the late 1800s and subsequently renovated, each unit has hardwood flooring and original features. Recent updates include new siding, individual water heaters for each unit, heat pumps installed in two of the units, and a central boiler capable of servicing the entire building. The building comprises a 1,100 sq ft 2-bedroom/1-bath unit in the back and three 1-bedroom units in the front part of the building. Offering various possibilities for prospective buyers: rent out all units as an investment, owner occupy one unit and rent out the remaining units to cover expenses, or easily restore the building to its former grandeur as a single-family home. Completing the property is a large back yard and workshop with a loft, presenting yet another opportunity for potential buyers. Don't miss this one of a kind opportunity! **3 of 4 units currently tenant occupied**

Listing Tools

Property Details of 13 Pleasant Street

Property Details

Interior Features

Exterior Features

Utilities and Appliances

Other Details

Map Location

Driving Directions

Listing data is derived in whole or in part from the Maine IDX & is for consumers' personal, non commercial use only. Dimensions are approximate and not guaranteed. All data should be independently verified. ©2026 Maine Real Estate Information System, Inc. All Rights Reserved. equal opportunity housing logo   Privacy Policy

The Christopher Real Estate Group participates in ©2026 Maine Listings Internet Data Exchange program, allowing us to display other Maine IDX Participants' listings. This website does not display complete listings. Certain listings of other real estate brokerage firms have been excluded. Mortgage figures are estimates. Check with your bank or proposed mortgage company for actual interest rates. This product uses the FRED® API but is not endorsed or certified by the Federal Reserve Bank of St. Louis.

Hi there! How can we help you?

Contact us using the form below or give us a call.

Send Us A Message:

I agree to receive marketing and customer service calls and text messages from The Christopher Group, LLC. To opt out, you can reply 'stop' at any time or click the unsubscribe link in the emails. Consent is not a condition of purchase. Msg/data rates may apply. Msg frequency varies. Privacy Policy.

Do not fill in this field:

This site is protected by reCAPTCHA and the Google Privacy Policy and Terms of Service apply.

Hi there! How can we help you?

Contact us using the form below or give us a call.

Send Us A Message:

Do not fill in this field:

This site is protected by reCAPTCHA and the Google Privacy Policy and Terms of Service apply.

Hi there! How can we help you?

Contact us using the form below or give us a call.

Send Us A Message:

Do not fill in this field:

This site is protected by reCAPTCHA and the Google Privacy Policy and Terms of Service apply.

Do not fill in this field:

This site is protected by reCAPTCHA and the Google Privacy Policy and Terms of Service apply.

Do not fill in this field:

This site is protected by reCAPTCHA and the Google Privacy Policy and Terms of Service apply.

Do not fill in this field:

This site is protected by reCAPTCHA and the Google Privacy Policy and Terms of Service apply.

$

Do not fill in this field:

This site is protected by reCAPTCHA and the Google Privacy Policy and Terms of Service apply.